isometrische Darstellung

Technisches Zeichnen  im Wandel der Zeit

3D

Als Besucher auf onshape

Wenn Du möchtest, kannst du das CAD-Programm  am Ende des Lehrganges kennen lernen.











Hier geht es im Lehrgang weiter:

Um zu verstehen, wie technisches Zeichnen am Computer funktioniert, lernst Du in diesem Kurs zunächst alles über die Grundlagen und machst selbst einfache Zeichenübungen wie in den Anfängen:  Auf Papier mit einem Zeichenbrett, das Dir hilft, genauer zu zeichnen als ohne dieses Hilfsmittel.

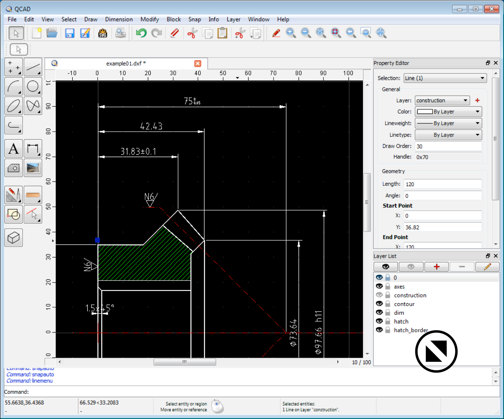
Die Zeichnungen für Deine Übungsblätter und Lösungen wurden teilweise mit dem Programm QCAD erstellt:
-
QCAD ist ein Programm für Computer-unterstütztes Zeichnen (CAD) in zwei Dimensionen (2D).

Onshape öffnet sich als neue Seite. 

Betrachte den Körper  in verschiedenen Ansichten.     <<< Siehe links!

Mit gedrückter rechter Maustaste kannst du den Körper „anfassen“ und im Raum bewegen.


Gehe danach zurück auf diese Seite!

CAD-Programm QCAD
Diese Website verwendet Cookies.
Bitte lesen Sie unsere Datenschutzerklärung für Details.

OK

Alle Cookies erlauben

Ausgewählte akzeptieren

Verweigern

Setzt ein technisches Cookie, das aufzeichnet, dass Sie die Zustimmung verweigern. Es wird nicht nochmals nachgefragt werden.

Entfernen

Entfernt das Zustimmungscookie aus Ihrem Browser.

Ablehnen

Setzt ein technisches Cookie, das Ihre Ablehnung der Zustimmung aufzeichnet, 
Sie werden nicht erneut gefragt.